Neubau-Gewerbefläche mit Schaufensterfront – ca. 500 m² im Zentrum-Ost
Im Neubauprojekt Quartier Kreuzstraße erwartet Sie eine repräsentative Gewerbefläche mit rund 500 m² im Erdgeschoss – ideal für Büro, Praxis, Showroom oder Einzelhandel.
Dank der großzügigen Schaufensterfront, der flexiblen Grundrissgestaltung und der hochwertigen Neubauqualität präsentiert sich das Objekt als perfekte Bühne für Ihr Geschäft.
Die Immobilie befindet sich in einem urbanen Umfeld mit wachsender Nachfrage. In direkter Nachbarschaft zum beliebten Lene-Voigt-Park und nur wenige Minuten vom Leipziger Hauptbahnhof entfernt, profitieren Sie von einer Lage, die gleichermaßen Mitarbeiter, Kunden und Klienten anspricht.
ca. 498 m² im Erdgeschoss – flexibel teilbar & gestaltbar
repräsentative Schaufensterfront zur Ludwig-Erhard-Straße
Erstbezug im Neubau
individuelle Ausstattung nach Mieterwunsch
barrierefreier Zugang
Tiefgarage mit PKW-Stellplätzen und E-Mobilität
moderne Bauqualität, zukunftssicheres Umfeld
AUSSTATTUNG
Wohnungstyp | Keine Angabe |
---|---|
Wohnfläche | 498,68m² |
Gäste WC | nein |
Bezugsfrei ab | 01.01.1970 |
Gartenbenutzung | nein |
Keller | nein |
Balkon / Terasse | nein |
Personenaufzug | nein |
Kosten | |
---|---|
Nebenkosten | + 0 |
Gesamtmiete | 15 € |
Bausubstanz | |
---|---|
Objektzustand | keine Angabe |
Heizungsart | keine Angabe |
Wesentliche Energieträger | keine Angabe |
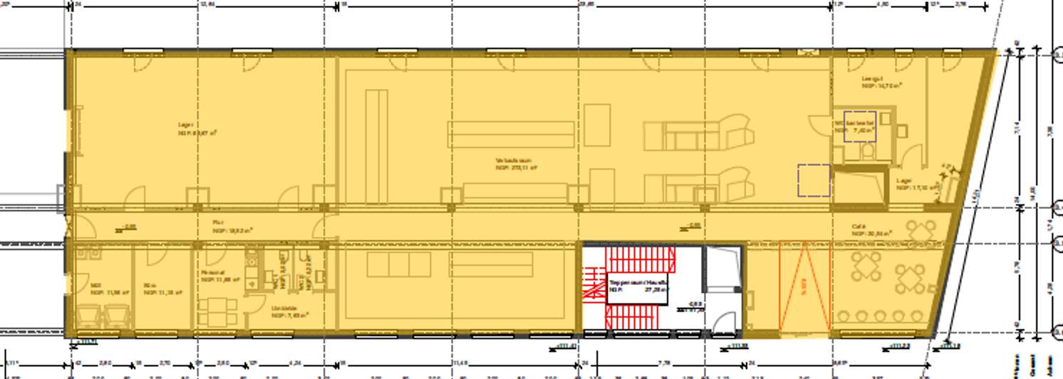
GRUNDRISS
LAGE
Das Quartier Kreuzstraße befindet sich im Leipziger Zentrum-Ost,
einem dynamisch wachsenden Stadtteil mit lebendiger
Atmosphäre und zentraler Lage. Die Umgebung ist geprägt von
einer Mischung aus historischen Gebäuden, modernen
Wohnprojekten und vielfältiger Infrastruktur. Die Innenstadt
sowie der Leipziger Hauptbahnhof sind in wenigen Minuten fußläufig erreichbar. Auch der beliebte Lene-Voigt-Park, der als grüne Oase mitten im Viertel gilt, befindet sich in direkter Nachbarschaft. Zahlreiche Cafés, Supermärkte, Kitas und Dienstleister befinden sich im direkten Umfeld und sorgen für eine ausgezeichnete Nahversorgung. Durch die Nähe zur Prager Straße, dem Inneren Cityring und mehreren Straßenbahnlinien ist das Quartier optimal an den öffentlichen Nahverkehr und das überregionale Straßennetz angebunden. Der Standort bietet somit sowohl für Kunden als auch Mitarbeitende beste Erreichbarkeit – ob zu Fuß, mit dem Rad, Auto oder ÖPNV. Die Lage eignet sich ideal für gewerbliche Nutzungen mit Publikumsverkehr, aber auch für ruhige Bürotätigkeiten mit urbanem Anschluss.
SONSTIGES
Mietkonditionen und Mietlaufzeiten werden mit dem Vermieter
gesondert verhandelt.
Alle Angaben sind ohne Gewähr und basieren ausschließlich auf
Informationen, die uns von unserem Auftraggeber zur Verfügung
gestellt wurden. Wir übernehmen keine Gewähr für die Vollständigkeit, Richtigkeit und Aktualität dieser Angaben
ANSPRECHPARTNER





















Allgemeine Anfrage: Anfrage stellen |