Modernes Wohnen in der historischen Walzenmühle Delitzsch
Die Walzenmühle gilt als das älteste Fabrikgebäude in Delitzsch, welches im Jahr 1875 mit der Walzengetreidemühle und einer Wohnvilla erbaut wurde.
Zusammen mit der Gestaltung der Außenanlage und Errichtung eines Parkhauses unweit des Objektes im Areal Wasserturm, wird hier ein ansprechendes Wohnquartier entstehen.
AUSSTATTUNG
| Wohnungstyp | Etagenwohnung |
|---|---|
| Zimmer | 3 |
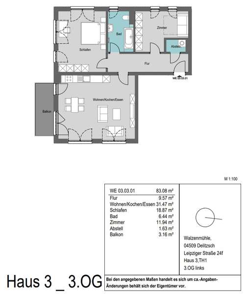
| Wohnfläche | 83,05m² |
| Etage | 2 |
| Etagenanzahl | 5 |
| Gäste WC | nein |
| Bezugsfrei ab | 01.07.2025 |
| Haustiere | ja |
| Gartenbenutzung | nein |
| Keller | nein |
| Balkon / Terasse | ja |
| Personenaufzug | ja |
| Kosten | |
|---|---|
| Kaltmiete | 1079 € |
| Nebenkosten | + 208 |
| Heizkosten | in Nebenkosten enthalten |
| Gesamtmiete | 1287 € |
| Bausubstanz | |
|---|---|
| Objektzustand | Erstbezug |
| Heizungsart | keine Angabe |
| Wesentliche Energieträger | keine Angabe |
AUSSTATTUNG
Bad:
– mit Wanne
Wohnzimmer:
-Vinyl-Designfußbodenbelag, offener Küchenbereich, Zugang zum Balkon
Küche:
-offener Küchenbereich im Wohnzimmer
Schlaf- und Arbeitszimmer:
-Vinyl-Designfußbodenbelag
Abstellraum:
– mit WM-Anschluss
GRUNDRISS
LAGE
Das Objekt Leipziger Straße 24 f befindet sich am südlichen Ortseingang der historischen Kreisstadt Delitzsch. Die ruhige Lage ermöglicht kurze Wege zu Behörden, Schulen, Kitas, kulturellen und medizinischen Einrichtungen, sowie zu Geschäften des täglichen Bedarfs. Die Kleinstadt mit ca. 25.000 Einwohnern ist optimal an Bundesautobahn, Bundes- und Landesstraßen angebunden, um Großstädte wie z.B. Leipzig oder Halle/Saale schnell zu erreichen.
SONSTIGES
Bei Abschluss eines Mietvertrages wird zwischen beiden Parteien ein Kündigungsausschluss von 2 Jahren vereinbart. Der Vermieter räumt dem Mieter die Option ein, jederzeit einen Nachmieter für die Wohnung zu finden.
Alle Angaben sind ohne Gewähr und basieren ausschließlich auf Informationen, die uns von unserem Auftraggeber zur Verfügung gestellt wurden. Wir übernehmen keine Gewähr für die Vollständigkeit, Richtigkeit und Aktualität dieser Angaben.
Die Angaben zum Energieausweis können beim Vermieter erfragt haben.
ANSPRECHPARTNER

|
Allgemeine Anfrage: Anfrage stellen |