**NEU!!! Repräsentative Gewerbefläche im Erstbezug**
Das Neubauprojekt „Q3“ befindet sich Ecke Naumburger Straße / Maria-Pawlowna-Straße in Jena. Es umfasst neben Wohnungen auch drei großzügige Gewerbeeinheiten im Erdgeschoss mit barrierefreiem Zugang.
Mit klaren Linien, hochwertigen Materialien und einer durchdachten Architektur schafft dieser Neubau eine ansprechende Wohn- und Arbeitsatmosphäre.
AUSSTATTUNG
| Wohnungstyp | Keine Angabe | 
|---|---|
| Wohnfläche | 330,94m² | 
| Gäste WC | nein | 
| Bezugsfrei ab | Juni 2024 | 
| Gartenbenutzung | nein | 
| Keller | nein | 
| Balkon / Terasse | nein | 
| Personenaufzug | nein | 
| Kosten | |
|---|---|
| Nettokaltmiete | -,-- € | 
| Nebenkosten | -,-- € | 
| Bausubstanz | |
|---|---|
| Objektzustand | keine Angabe | 
| Heizungsart | keine Angabe | 
| Wesentliche Energieträger | keine Angabe | 
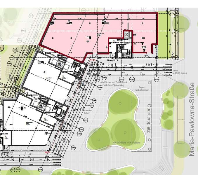
GRUNDRISS
LAGE
Die angebotene Gewerbeeinheit befindet sich in einer erstklassigen Lage in der Naumburger Straße, einer der wichtigsten und belebtesten Geschäftsstraßen in Jena. Sie gilt als eine der attraktivsten Einkaufsstraßen und die Nachbarschaft ist geprägt von einer lebendigen Mischung aus Einzelhandelsgeschäften, Boutiquen, Restaurants, Cafés sowie Dienstleistungsunternehmen. Durch das Quartier, welches in den nächsten Jahren noch weiter entwickelt wird, kommt es gerade im zentralen Umfeld zu einer hohen Frequentierung von Laufkundschaft.
Die Anbindung an den öffentlichen Nahverkehr ist ausgezeichnet. Vor dem neuen Quartier befindet sich direkt die Straßenbahnhaltestelle „Flurweg“. Parkmöglichkeiten für Kunden sind in der Nähe vorhanden.
SONSTIGES
Die Gewerbeeinheit bietet ideale Voraussetzungen für verschiedene Geschäftsarten. Ob Einzelhandelsgeschäft, Modeboutique, Café, Bäckerei, Büro oder Dienstleistungsunternehmen – die Lage und die Ausstattung ermöglichen eine breite Palette an Nutzungsmöglichkeiten.
Nutzen Sie diese einzigartige Gelegenheit, um Ihr Unternehmen in dieser attraktiven Gewerbefläche zu etablieren. Vereinbaren Sie noch heute einen Besichtigungstermin und lassen Sie sich von den Möglichkeiten dieser Fläche überzeugen.
ANSPRECHPARTNER





















| Allgemeine Anfrage:Anfrage stellen | 
 
         
                 
                 
                 
                         
                         
                         
                         
                         
                         
                        