Geräumige 2-Zimmer-Wohnung mit Terrasse in Leipzig
Diese ansprechende Erdgeschosswohnung befindet sich in einem vierstöckigen Gebäude. Mit einer Wohnfläche von 51,68 m² bietet die Wohnung mit 2 Zimmern und ist perfekt für Singles und Paare geeignet.
AUSSTATTUNG
| Wohnungstyp | Erdgeschosswohnung |
|---|---|
| Zimmer | 2 |
| Wohnfläche | 51,68m² |
| Etage | 1 |
| Etagenanzahl | 4 |
| Gäste WC | nein |
| Bezugsfrei ab | 01.12.2025 |
| Haustiere | ja |
| Gartenbenutzung | nein |
| Keller | nein |
| Balkon / Terasse | ja |
| Personenaufzug | nein |
| Kosten | |
|---|---|
| Kaltmiete | 579 € |
| Nebenkosten | + 150 |
| Heizkosten | in Nebenkosten enthalten |
| Gesamtmiete | 729 € |
| Bausubstanz | |
|---|---|
| Objektzustand | Gepflegt |
| Heizungsart | keine Angabe |
| Wesentliche Energieträger | keine Angabe |
AUSSTATTUNG
– Laminatboden in Flur, Schlaf- und Wohnzimmer
– Geräumiges Tageslichtbad mit Handtuchheizkörper und Badewanne mit Duschtrennwand
– Großzügige Küche mit Terrassenzugang
– separater Terrassenbereich
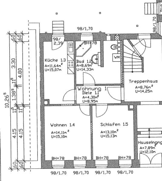
GRUNDRISS
LAGE
Das Objekt befindet sich im ruhigen und zugleich beliebten Stadtteil Eutritzsch. Durch die sehr gute Anbindung erreichen Sie die Leipziger Innenstadt mit den öffentlichen Verkehrsmitteln in nur wenigen Minuten. Am nahegelegenen Eutritzscher Markt stehen zahlreiche Einkaufsmöglichkeiten für den täglichen Bedarf zur Verfügung. Auch Kindertagesstätten, Schulen, Arztpraxen, Apotheken sowie Restaurants sind in unmittelbarer Umgebung vorhanden. Der Arthur-Brettschneider-Park, nur wenige Gehminuten entfernt, lädt zudem zum Spazieren, Verweilen und Erholen ein.
SONSTIGES
Bei Abschluss eines Mietvertrages wird zwischen beiden Parteien ein Kündigungsausschluss von 2 Jahren vereinbart. Alle Angaben sind ohne Gewähr und basieren ausschließlich auf Informationen, die uns von unserem Auftraggeber zur Verfügung gestellt wurden. Wir übernehmen keine Gewähr für die Vollständigkeit, Richtigkeit und Aktualität dieser Angaben.
ANSPRECHPARTNER

|
Allgemeine Anfrage: Anfrage stellen |