**Frisch renovierte Büro- oder Praxisfläche in Dresden Pieschen**
Das unter Denkmalschutz stehende Gründerzeithaus verfügt über 2 Gewerbeeinheiten und 5 Wohneinheiten, verteilt auf 4 Etagen.
AUSSTATTUNG
| Wohnungstyp | Keine Angabe |
|---|---|
| Wohnfläche | 133,8m² |
| Etage | |
| Etagenanzahl | 4 |
| Gäste WC | nein |
| Bezugsfrei ab | ab sofort |
| Gartenbenutzung | nein |
| Keller | nein |
| Balkon / Terasse | nein |
| Personenaufzug | nein |
| Kosten | |
|---|---|
| Nettokaltmiete | -,-- € |
| Nebenkosten | -,-- € |
| Bausubstanz | |
|---|---|
| Objektzustand | keine Angabe |
| Heizungsart | Zentralheizung |
| Wesentliche Energieträger | keine Angabe |
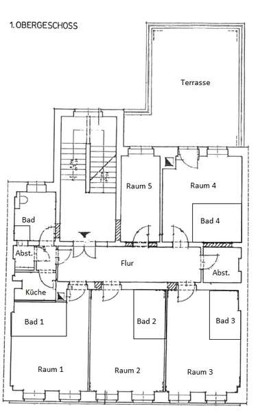
GRUNDRISS
LAGE
Das Objekt befindet sich im Stadtteil Dresden-Pieschen, unweit des Pieschener Hafens.
Zahlreiche Geschäfte des täglichen Bedarfs, kleine Cafés, Schulen sowie Restaurants befinden sich in unmittelbarer Nähe. In das Stadtzentrum gelangt man sowohl mit dem Pkw als auch mit den öffentlichen Verkehrsmitteln in etwa 10 Minuten.
SONSTIGES
Alle Angaben sind ohne Gewähr und basieren ausschließlich auf Informationen, die uns von unserem Auftraggeber zur Verfügung gestellt wurden.
Wir übernehmen keine Gewähr für die Vollständigkeit, Richtigkeit und Aktualität dieser Angaben.
ANSPRECHPARTNER

Stefanie Gohla
Geschäftsleitung, Vertrieb/Vermietung, Hausverwaltung
Leipzig
Sophie Wust
Carolin Dowidat
Tino Krause
Julia Dietze
Ulrike Redlich
Julia Haller
Nils Planer
Patrick Lehmann
Elisa Günther
Jessica Glorius
Annika Hebestadt
Josephine Immig
Philipp Sobek
Jonas Hellmann
Amelie Eichhorn
Nadia Flato
Lisa-Maria Buder
Vertrieb/Vermietung, Niederlassung Dresden
Dresden
Tatjana Eroschin
Vertrieb/Vermietung, Niederlassung Dresden
Dresden
Jörn Lein
Julia Freimuth
Vertrieb/Vermietung, Niederlassung Dresden
Dresden
|
Allgemeine Anfrage: Anfrage stellen |