Exklusive Praxisfläche – Erstbezug nach umfangreicher Sanierung!
Wir freuen uns, Ihnen ein außergewöhnliches Praxis- und Bürohaus aus dem Jahr 1904 vorstellen zu können. Dieses historische Gebäude, das einen charmanten und eleganten Charakter aufweist, bietet vielfältige Möglichkeiten für die Nutzung als Praxis- oder Bürofläche.
Das Haus befindet sich in einer begehrten Lage, die sowohl für Patienten als auch für Mitarbeiter oder Kunden gut erreichbar ist. Es liegt idealerweise in der Nähe von öffentlichen Verkehrsmitteln und verfügt über eine gute Anbindung an Hauptverkehrsstraßen. Die zentrale Lage ermöglicht eine bequeme Anreise und bietet eine gute Sichtbarkeit für Ihr Unternehmen.
AUSSTATTUNG
| Wohnungstyp | Keine Angabe |
|---|---|
| Wohnfläche | 161,7m² |
| Etage | |
| Etagenanzahl | 1. OG |
| Gäste WC | nein |
| Bezugsfrei ab | nach Vereinbarung |
| Gartenbenutzung | nein |
| Keller | nein |
| Balkon / Terasse | nein |
| Personenaufzug | ja |
| Kosten | |
|---|---|
| Nettokaltmiete | -,-- € |
| Nebenkosten | -,-- € |
| Bausubstanz | |
|---|---|
| Objektzustand | keine Angabe |
| Heizungsart | keine Angabe |
| Wesentliche Energieträger | keine Angabe |
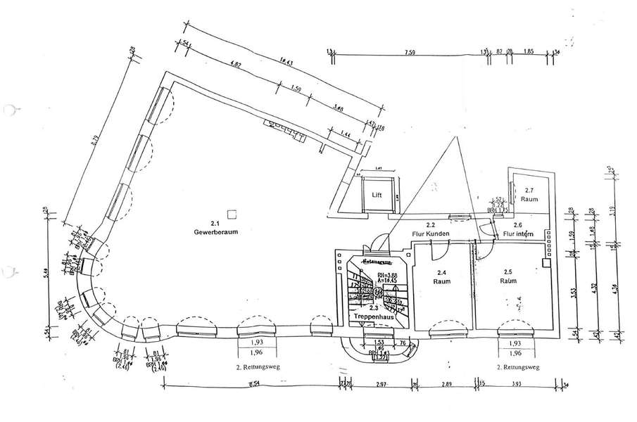
GRUNDRISS
LAGE
Halle Mitte ist ein zentraler Stadtteil in der Stadt Halle (Saale) in Deutschland. Es ist ein lebendiges und vielfältiges Viertel, das eine Mischung aus historischer Architektur, Einkaufsmöglichkeiten, kulturellen Einrichtungen und urbanem Leben bietet.
Der Stadtteil liegt im Herzen der Stadt und ist gut erreichbar. Es erstreckt sich rund um den Marktplatz, der das historische Zentrum von Halle bildet.
Der Stadtteil profitiert von seiner zentralen Lage und ist sowohl mit öffentlichen Verkehrsmitteln als auch mit dem Auto leicht zu erreichen.
SONSTIGES
Alle Angaben sind ohne Gewähr und basieren ausschließlich auf Informationen, die uns von unserem Auftraggeber zur Verfügung gestellt wurden. Wir übernehmen keine Gewähr für die Vollständigkeit, Richtigkeit und Aktualität dieser Angaben.
ANSPRECHPARTNER

|
Allgemeine Anfrage: Anfrage stellen |