*Exklusive Gewerbeflächen im Lene-Voigt-Karee / Erstbezug*
Die Quartiersentwicklung „Lene-Voigt-Karee“ umfasst neben Wohnungen auch 12 großzügige Gewerbeeinheiten.
Verteilt sind diese Flächen auf 8 Einheiten im Erdgeschoss sowie 4 Büro/Praxisflächen im 1.Obergeschoss. Die Büroflächen können nach Bedarf auch als eine Einheit zusammengefasst werden und bestechen durch großzügige Raumaufteilungsmöglichkeiten.
Das Objekt beeindruckt zudem durch innenliegende Patios, die für ein ganzjährig ausgeglichenes Klima sorgen, sowie einen begrünten Innenhof mit zahlreichen Spiel- und Erholungsmöglichkeiten.
Ergänzend wird eine Tiefgarage auf 2 Ebenen mit der Möglichkeit der Stellplatzanmietung für die Gewerbeflächen realisiert.
Weitere Infos finden Sie unter https://lene-voigt-karree-leipzig.de/
AUSSTATTUNG
| Wohnungstyp | Keine Angabe |
|---|---|
| Wohnfläche | 270,1m² |
| Gäste WC | nein |
| Bezugsfrei ab | 2023 |
| Gartenbenutzung | nein |
| Keller | nein |
| Balkon / Terasse | nein |
| Personenaufzug | ja |
| Kosten | |
|---|---|
| Nettokaltmiete | -,-- € |
| Nebenkosten | -,-- € |
| Bausubstanz | |
|---|---|
| Objektzustand | keine Angabe |
| Heizungsart | keine Angabe |
| Wesentliche Energieträger | keine Angabe |
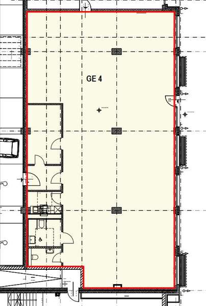
GRUNDRISS
LAGE
Der Stadtteil Reudnitz schließt östlich unmittelbar an das Leipziger Zentrum an.
Die Lage zwischen Prager Straße, Dresdner Straße und entlang der B2 ermöglicht eine optimale verkehrstechnische Anbindung.
Zahlreiche Bürodependancen renommierter Unternehmen sowie Bürokomplexe befinden sich in umittelbarer Nähe zum Objekt.
Der von je her historisch gewachsene Gewerbestandort rund um den Gutenbergplatz, bietet so im Einzugsgebiet reichhaltige Möglichkeiten für potentielle Gewerbemieter.
SONSTIGES
Alle Infos zur Projektentwicklung „Lene-Voigt-Karree finden Sie unter
Klicken Sie auf den unteren Button, um den Inhalt von lene-voigt-karree-leipzig.de zu laden.
Alle Angaben sind ohne Gewähr und basieren ausschließlich auf Informationen, die uns von unserem Auftraggeber zur Verfügung gestellt wurden. Wir übernehmen keine Gewähr für die Vollständigkeit, Richtigkeit und Aktualität dieser Angaben.
ANSPRECHPARTNER

|
Allgemeine Anfrage: Anfrage stellen |