Effiziente Gewerbefläche im EG – ruhig gelegen und vielseitig nutzbar
Das Neubauprojekt Quartier Kreuzstraße entsteht im Leipziger
Zentrum-Ost zwischen der Kreuzstraße, Langen Straße und
Ludwig-Erhard-Straße. In direkter Nachbarschaft zum LeneVoigt-Park und nur wenige Minuten vom Hauptbahnhof entfernt.
Die Bebauung des ca. 7.300 m² großen Grundstücks schafft ein
modernes Wohnquartier mit Mischung aus Wohnen und
Gewerbe. Während die Obergeschosse ausschließlich dem
Wohnungsbau vorbehalten sind, entstehen im Erdgeschoss
attraktive Gewerbeflächen mit hohem Gestaltungspotenzial für
Büro, Dienstleistung oder Einzelhandel.
Die herausragende Lage im urbanen Umfeld sowie die Nähe zur
Leipziger Innenstadt machen das Projekt zu einem
zukunftsorientierten Standort für vielfältige Nutzungen. Die
Gewerbeeinheiten bieten hohe Sichtbarkeit, moderne
Bauqualität und eine direkte Anbindung an ein wachsendes
Wohnumfeld.
Zur Verfügung stehen insgesamt vier Gewerbeflächen mit
Größen zwischen ca. 47 m² und 498 m² – darunter auch eine
markante Ecklage mit Schaufensterfront zur Ludwig-ErhardStraße. Das Objekt verfügt über eine objekteigene Tiefgarage
mit PKW-Stellplätzen sowie die Möglichkeit zur E-Mobilität. Die
barrierefreie Erschließung rundet das moderne
Nutzungskonzept ab
AUSSTATTUNG
Wohnungstyp | Keine Angabe |
---|---|
Wohnfläche | 98,36m² |
Gäste WC | nein |
Bezugsfrei ab | 01.01.1970 |
Gartenbenutzung | nein |
Keller | nein |
Balkon / Terasse | nein |
Personenaufzug | nein |
Kosten | |
---|---|
Nebenkosten | + 3 |
Gesamtmiete | 15 € |
Bausubstanz | |
---|---|
Objektzustand | keine Angabe |
Heizungsart | keine Angabe |
Wesentliche Energieträger | keine Angabe |
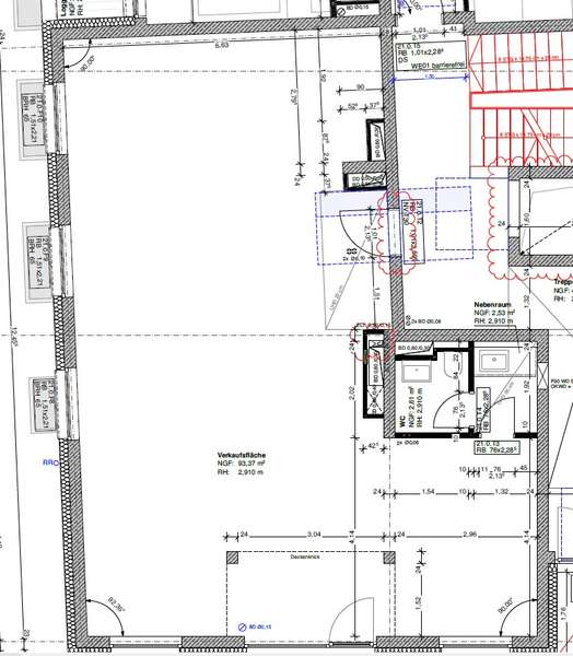
GRUNDRISS
LAGE
Das Quartier Kreuzstraße befindet sich im Leipziger Zentrum-Ost,
einem dynamisch wachsenden Stadtteil mit lebendiger
Atmosphäre und zentraler Lage. Die Umgebung ist geprägt von
einer Mischung aus historischen Gebäuden, modernen
Wohnprojekten und vielfältiger Infrastruktur. Die Innenstadt
sowie der Leipziger Hauptbahnhof sind in wenigen Minuten
fußläufig erreichbar. Auch der beliebte Lene-Voigt-Park, der als
grüne Oase mitten im Viertel gilt, befindet sich in direkter
Nachbarschaft. Zahlreiche Cafés, Supermärkte, Kitas und
Dienstleister befinden sich im direkten Umfeld und sorgen für
eine ausgezeichnete Nahversorgung. Durch die Nähe zur Prager
Straße, dem Inneren Cityring und mehreren Straßenbahnlinien ist
das Quartier optimal an den öffentlichen Nahverkehr und das
überregionale Straßennetz angebunden. Der Standort bietet
somit sowohl für Kunden als auch Mitarbeitende beste
Erreichbarkeit – ob zu Fuß, mit dem Rad, Auto oder ÖPNV. Die
Lage eignet sich ideal für gewerbliche Nutzungen mit
Publikumsverkehr, aber auch für ruhige Bürotätigkeiten mit
urbanem Anschluss.
SONSTIGES
Mietkonditionen und Mietlaufzeiten werden mit dem Vermieter
gesondert verhandelt.
Alle Angaben sind ohne Gewähr und basieren ausschließlich auf
Informationen, die uns von unserem Auftraggeber zur Verfügung
gestellt wurden. Wir übernehmen keine Gewähr für die
Vollständigkeit, Richtigkeit und Aktualität dieser Angaben
ANSPRECHPARTNER





















Allgemeine Anfrage: Anfrage stellen |