** 1 Monat Kaltmietfrei ** 2 möblierte Büroräume in Bürogemeinschaft
Das Wohn-und Geschäftshaus verfügt über 2 Wohneinheit und 7 Gewerbeeinheiten, welche sich auf insgesamt 2 Etagen verteilen.
AUSSTATTUNG
| Wohnungstyp | Keine Angabe |
|---|---|
| Wohnfläche | 50m² |
| Etage | |
| Etagenanzahl | 2 |
| Gäste WC | nein |
| Bezugsfrei ab | sofort |
| Gartenbenutzung | nein |
| Keller | nein |
| Balkon / Terasse | nein |
| Personenaufzug | nein |
| Kosten | |
|---|---|
| Nettokaltmiete | -,-- € |
| Nebenkosten | -,-- € |
| Bausubstanz | |
|---|---|
| Objektzustand | keine Angabe |
| Heizungsart | Zentralheizung |
| Wesentliche Energieträger | keine Angabe |
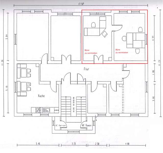
GRUNDRISS
LAGE
Das Wohn-und Geschäftshaus befindet sich im Norden von Dresden und verbindet die Dresdner Innenstadt mit den Ortschaften Weixdorf und Langebrück. Der öffentliche Personenverkehr ist sehr gut ausgebaut und in wenigen Gehminuten zu erreichen. Durch die Nähe zur Autobahn A4 und zum Flughafen Dresden ist auch eine Anbindung an den fernverkehr gegeben. Zur Erholung laden die kleinen Parkanlagen in der Nähe sowie die Dresdner Heide ein.
SONSTIGES
Alle Angaben sind ohne Gewähr und basieren ausschließlich auf
Informationen, die uns seitens des Auftraggebers zur Verfügung
gestellt wurden. Wir übernehmen keine Gewähr für die
Vollständigkeit, Richtigkeit und Aktualität dieser Angaben.
ANSPRECHPARTNER

|
Allgemeine Anfrage: Anfrage stellen |